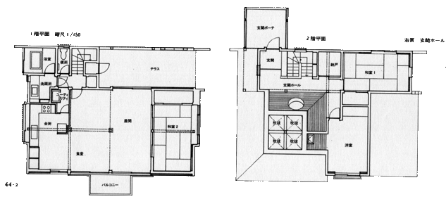
構造:在来木造地上2階

       2階床面積:42.23u

       1階床面積:72.04u

       延床面積:114.27u (34.56坪)                       

     

 

                    前に戻る