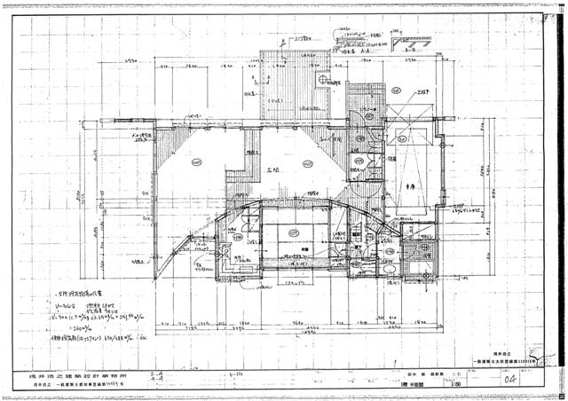
‚PŠK•½–Ê}      @‚QŠK•½–Ê}

@

@@\‘¢FÝ—ˆ–Ø‘¢’nã‚QŠK

@@‚QŠK°–ÊÏF15.15‡u@@@@@@@@@@@

@@‚PŠK°–ÊÏF107.89‡u

@@‰„°–ÊÏF123.04‡u@(37.21’Ø)@@@@@@@@@@@@@@@@@@  £back

@

@

@

@