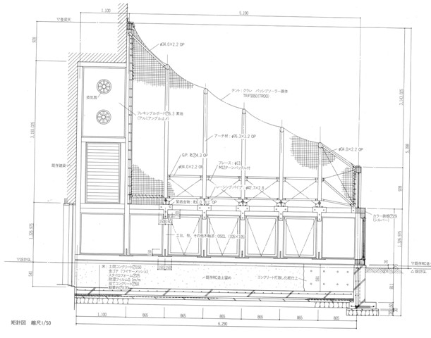
構造:在来木造 一部鉄骨造 地上1階

                      1階床面積:47.69u

                       延床面積:47.69u (14.42坪)                         ▲back